


Producten Nathan
Het nieuwe pand komt aan de rand van de stad te liggen, grenzend aan het landschap dat zich omhoog trekt onder een beschermende luifel naar de entree. Eenmaal binnen is er een aangenaam stabiel klimaat, doordat er gebruik gemaakt gaat worden van de eigen producten van Nathan (Uponor en alpha innotec), Hierbij worden betonkernactivering met warmtepomp en bronnen en de ventilatie met warmteterugwinning ingezet om de hoge duurzaamheidsdoelen te halen.
Betonkernactivering
De keuze voor betonkernactivering zorgt voor een zeer duurzaam gebouw dat techniek en design optimaal combineert. Door het in de betonvloer opnemen van de meeste installaties en het weglaten van het gebruikelijk verlaagd plafond komt het schoonwerk betonnen plafond in zicht en kan ongestoord warmte-uitwisseling plaatsvinden tussen de vloer/plafond en de ruimte. Alleen de in het beton gestorte roosters voor luchtbehandeling, armaturen voor de basisverlichting en de sprinklerkoppen blijven in het zicht. Een strak beeld, minimaal gebruik van materiaal en een stabiele temperatuur resulteert.
voorbeeldproject
Het hoofdkantoor met kennis- en expertisecentrum is hét nieuwe 3d-visitekaartje van Nathan. Het gebouw is niet alleen een kantoorgebouw, maar ook een tentoonstelling van de duurzame klimaattechniek van Nathan. Een voorbeeldproject voor de integratie van hoogwaardige architectuur en innovatieve technologie.


Van schets tot gebouw
De locatie is dé bepalende factor geweest voor de vormgeving van het gebouw. De eerste schets – gebaseerd op de visie op deze locatie – vormt de basis van het gebouw: in één vloeiende beweging wordt het landschap omhoog getrokken. De rand omlijst de kantoren en zorgt op een natuurlijke manier voor zonwering. Alleen dit kader is een gesloten volume, de rest van de gevels bestaat uit glas voor een licht kantoor en maximaal zicht op de omgeving.

Gericht op het landschap
Met de juiste toepassingen wordt zowel het gebouw als de omgeving naar een hoger plan getild. Door het omhoog trekken van het landschap worden de parkeerplaatsen aan het zicht onttrokken, richten de glazen gevels van de kantoren zich naar het omringende landschap en wordt de showroom op de toegangsweg gericht.





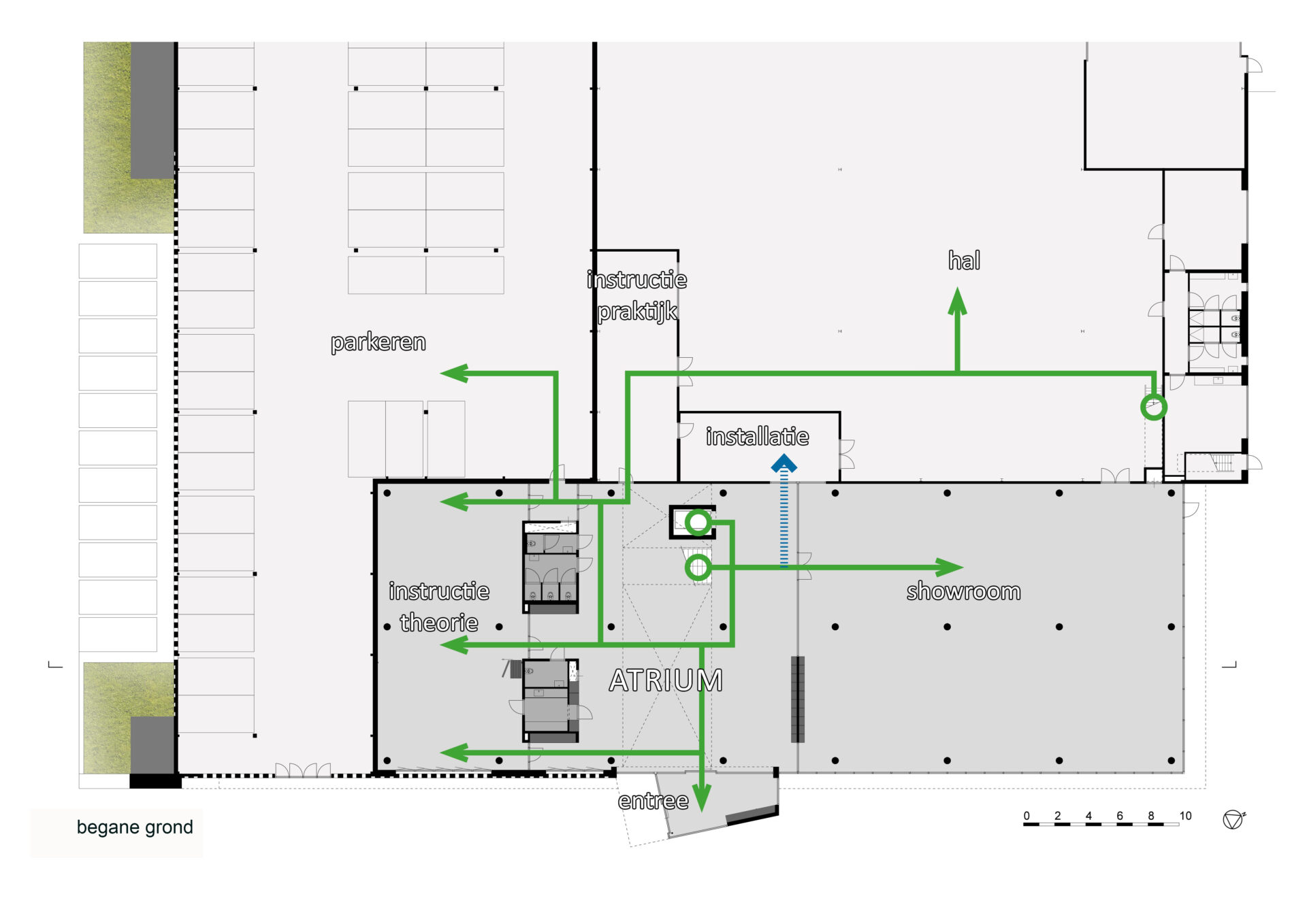
Verbindend atrium
Het atrium speelt een centrale rol in het gebouw. Door licht, lucht en visuele verbinding draagt het bij aan het transparante karakter van de architectuur. De routing door het gebouw gaat altijd via het atrium, dat zo alle verdiepingen ook fysiek met elkaar verbindt.







Duurzaamheid in vorm en concept
Het ontwerp van het gebouw is afgestemd op de omgeving om het energie-nul concept te ondersteunen. De toepassing van luifels en de oriëntatie van de open gevels naar het zuiden benutten de warmte en licht van de zon en weren die waar nodig. De toegepaste materialen, zoals de pv-cellen in het atriumdak en triple beglazing, worden naast hun bekende duurzame eigenschappen tevens ingezet met een zonwerende functie om het klimaat stabiel te houden.



Patronen en texturen
WillemsenU heeft zowel het gebouw als het interieur ontworpen.










