

De bouwlocatie is gelegen in het groene entreegebied van Oeffelt tussen het agrarische landschap en het evenemententerrein. Als voortzetting van de zuidelijk gelegen groenstructuur ‘rijst’ de kazerne geleidelijk op uit het landschap. Hierbij vormt de remise aan de noordzijde –als hoogste punt van het gebouw– een subtiele blikvanger aan de openbare weg. Aan de zuidzijde bevinden zich de ontspanningsruimtes, voorzien van een aantrekkelijk buitenterras.


De kazerne is voorzien van een groendak, waardoor dak en landschap letterlijk in elkaar overlopen. Het glooiende gebouwvolume zorgt met haar duurzame houten gevelbekleding voor een optimale integratie met de omgeving.
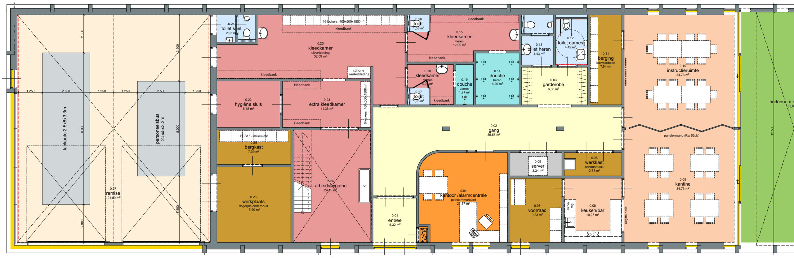
Omdat de kazerne slechts 10% van de tijd gebruikt wordt, is het compacte gebouw opgezet volgens het Passief Gebouw-principe. Het gebouw is hierbij voorzien van een uitstekend geïsoleerde schil. Naast een groendak voor waterbuffer en natuurinclusiviteit, is de kazerne voorzien van LED-verlichting, zonnepanelen, een bodemwarmtepomp én een WTW-systeem. Als basisverwarming is er vloerverwarming opgenomen, waarbij ook passieve koeling mogelijk is. De temperatuur in kazerne blijft continu op 15 graden, maar kan binnen een half uur aangepast worden naar een comfortabele temperatuur.

De brandweerkazerne in Oeffelt vormt een mooi voorbeeld hoe landschap, natuur én duurzame technieken naadloos kunnen samenkomen in een efficiënte en aantrekkelijke huisvesting.
