“Dankzij Frank en zijn team hebben we nu een prachtig boshuis; onopvallend aan de voorzijde, vrij zicht op de prachtige omgeving en van binnen erg praktisch en ruimtelijk. Er gaat geen dag voorbij dat we niet gekscherend tegen elkaar zeggen: Tot wanneer hadden we deze vakantie geboekt?”



De bewoners zijn echte buitenmensen; ze willen niet alleen de natuur zien, maar deze ook ruiken en voelen. Ze kochten een oud huis op een bosperceel met een prachtig, natuurlijk ven. Het was de perfecte locatie, maar in het bestaande huis was het gewenste intensieve contact met de omgeving niet mogelijk.
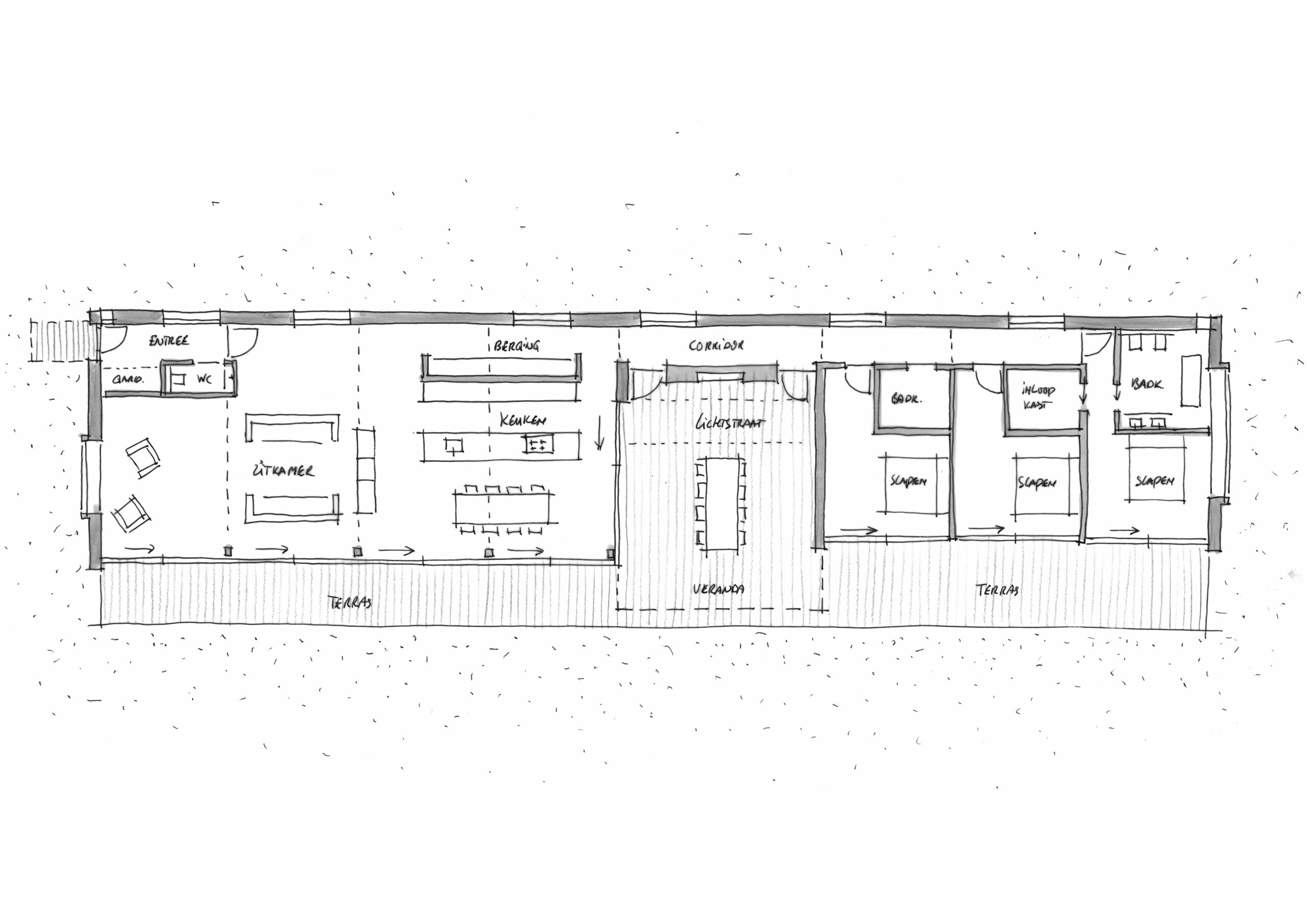
Een langgerekt huis
Om optimaal te kunnen genieten van het zicht op het ven liggen alle leefruimtes in het nieuwe huis in één rij naast elkaar, allen gericht op het ven. Hierdoor ontstaat een langgerekt volume, met aan één zijde een volledig open, glazen gevel met grote schuifpuien. Alle ruimtes zijn verbonden door een lange gang aan de achterzijde van de woning. In contrast met de open gevel aan het ven, grenst aan deze gang juist een gesloten gevel. De gevel is opgebouwd uit lange, zwarte bakstenen, die het lineaire karakter van de woning versterken. De harde, gesloten muur sluit deze zijde van het huis af van het naastliggende hotel. Contact is enkel mogelijk door een aantal kleine langgerekte speelse ramen.







Tijdens de bouw woonden de opdrachtgevers van het Boshuis in een bunker uit de jaren ‘60 die zij ontdekten op hun terrein. De bunker, die tijdens de koude oorlog door de vorige bewoner was gebouwd als schuilplaats, was aan één zijde opengemaakt om ook hier te kunnen genieten van daglicht en het uitzicht op het ven en dient nu als ondergronds gastenverblijf.

Energie uit de natuur
Het uiterlijk van het nieuwe gastenverblijf doet denken aan een earthship, een extreem duurzaam aardehuis. Het Boshuis heeft kenmerken van deze gebouwen: het heeft een dichte, goed geïsoleerde muur aan de noordzijde van de woning en een open, glazen gevel die de warmte binnenhaalt in de winterdagen. Het Boshuis geeft echter een alternatieve invulling aan hoe het energie vanuit de natuur aanwendt: een warmtepomp gebruikt aardwarmte als deel van het geïntegreerde duurzame klimaatsysteem en voorbereidingen zijn getroffen om de zonne-energie te benutten via een PV-systeem op het dak. Samen met de beleving van de natuur maakt de woning op deze wijze op allerlei manieren gebruik van wat de natuur de mens kan bieden.
Woning legt zijn hart bloot
Midden in de woning, tussen de keuken en de private slaapkamers, ligt de overdekte veranda, het hart van de lange woning. De bewoners kunnen hierdoor nog meer tijd spenderen in de buitenlucht, blootgesteld aan de natuur en omringd door natuurlijke materialen. De robuuste, natuurlijk materialen in de buitenruimte – de houten vloer, de ruwe stenen muur en de zichtbare constructie van eikenhouten spanten – sluiten hierop aan. Die sfeer zet zich binnen in de woning door, waar de mee-ontworpen meubels en interieur – de Spaanse hardstenen vloer, de ingetogen donkergrijze keuken, de grootte, robuuste houten eettafel en de cortenstaal openhaard – deel uit maken van het totaalconcept. Aan de buitenzijde van de woning dragen natuurlijke, deels onbehandelde materialen – donkere stenen gevel, de onbehandelde Iroko kozijnen en het zinken dak – bij aan de integratie van het huis in het landschap; zij zijn kenmerkend voor het pure, sobere karakter van het Boshuis.



